Baidu
map

轨迹公布!两区紧急寻人!西安一区新建8所中小学,11所幼儿园!

分类:教育资讯 时间:2022-12-01 来源:本站 作者:江牧
西安两区紧急寻人


西安未央区


5d2c6122ba9d35ad25d207bc90cae64d_640_wx_fmt=png&wxfrom=5&wx_lazy=1&wx_co=1.png


经流调,未央区明光路69号旭景兴园小区内有新冠阳性人员轨迹。请曾于


1.11月26日12:00至12:30、18:50至19:10去过梦凯便利店的人员。


2.11月26日18:50至19:10去过明喆便利店的人员。


3.11月28日19:40至20:10去过明喆便利店的人员。立即向所在社区(村)、单位或酒店报备。已到外市人员向当地疫情防控部门报备。


请有关人员严格落实防疫要求,不组织或参加集体活动,不进入室内密闭场所和学校等重点机构,不参加聚集性活动,不乘坐公共交通工具。如隐瞒、缓报相关情况,造成疫情传播扩散的,公安机关将依法追究责任。


汉城街道疫情防控指挥部电话:029-86609440。


西安市未央区疫情防控指挥部
2022年11月30日


西安灞桥区



请去过红旗街道这些地方的市民注意

12d77cd00f3b4b934966dda92357c65c_640_wx_fmt=png&wxfrom=5&wx_lazy=1&wx_co=1.png

广大市民朋友:


近日,我市新增一例新冠阳性感染者,在灞桥区红旗街道有活动轨迹。为切实做好新冠肺炎疫情防控工作,请11月27日7:30至17:00期间曾在浐河东岸赵庄桥附近购买爆米花的人员;


11月29日7:30至8:00期间曾在红旗街道穆将王菜市场大门北张记羊肉汤店就餐的人员;


11月29日13:50至14:20曾在红旗街道穆将王菜市场大门外南边亚玲餐厅秘制鸡汤刀削面就餐的人员;


11月29日8:00至16:00期间曾进出过穆将王菜市场的人员。


请立即主动向社区(村)、单位或酒店报备。按照属地疫情防控指挥部要求,严格落实“7天居家隔离”,居家隔离医学观察期间赋码管理,第1、3、5和7天各开展一次核酸检测。已到外市人员,立即向当地疫情防控部门报备。


如有隐瞒、缓报相关情况,造成疫情传播扩散的,将依法追究相关人员责任。希望广大群众自觉遵守相关法律规定,关注官方信息,不造谣、不信谣、不传谣,主动落实疫情防控相关措施。


感谢您对疫情防控工作的大力支持和配合!欢迎提供线索,联系电话:17782636591。


灞桥区疫情防控指挥部办公室
2022年11月30日



约4695亩!
泾河新城崇文塔板块最新规划公示



11月18日,西咸新区官方发布:关于XXJH-CW04-01等两个开发单元综合规划要点公示并征求意见的公告。


公示了,泾河新城崇文塔板块两个开发单元综合规划要点!


550bc495ae579abfb096e15c85cbca25_640_wx_fmt=jpeg&wxfrom=5&wx_lazy=1&wx_co=1.jpg



XXJH-CW04-01




XXJH-CW04-01开发单元位于泾河新城崇文塔片区,北至泾河大道、南至规划六路、西至正阳大道、东至火车南站路,总用地面积约133.96公顷(约2009亩)。


c85b7b39609e9abe3bb1ee1c0d340a28_640_wx_fmt=jpeg&wxfrom=5&wx_lazy=1&wx_co=1.jpg9b8b7155da849755c05d17e0b2c8dc32_640_wx_fmt=jpeg&wxfrom=5&wx_lazy=1&wx_co=1.jpg


一是,打造泾河湾院士公园;将31、53、54、55、56地块布局集中块状公园绿地,共31.41公顷,形成崇文塔东侧景观通廊。


二是,优化配套设施07地块配置1所24班小学,37地块配置1所18班初中,12、44地块各配置1处9班幼儿园,28地块配置1处12班幼儿园;05地块配置1处老人院;39地块配置1处体育场。


三是,打造“产学研用”一体化重镇;04、10、14、18、26地块规划科研用地,深化“千亿级院士湾科创中心”。


4122204c988e3af58e05bc19de7d8ceb_640_wx_fmt=jpeg&wxfrom=5&wx_lazy=1&wx_co=1.jpg



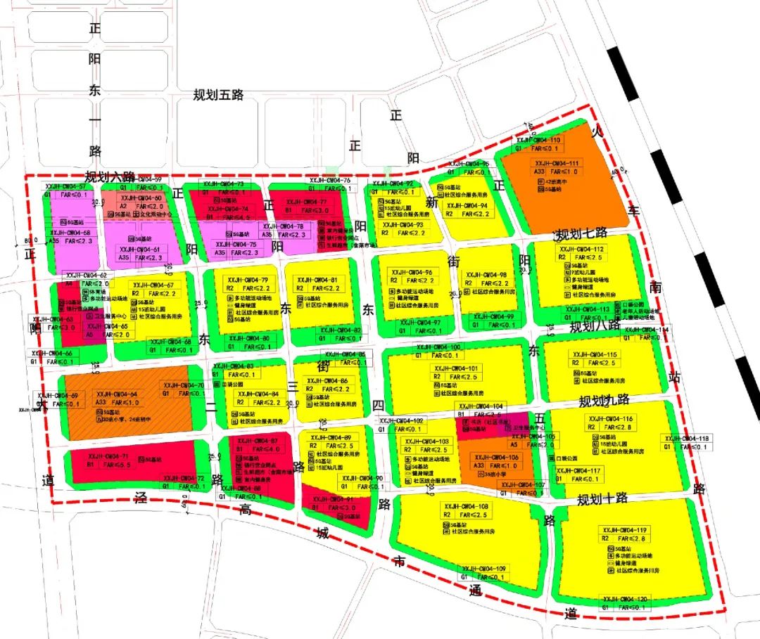
XXJH-CW04-02




XXJH-CW04-02开发单元位于泾河新城崇文塔片区,北至规划六路、南至泾高城市通道、西至正阳大道、东至火车南站路,总用地面积约179.09公顷(约2686亩)。


56cc759d703bcddf24997c731fa55730_640_wx_fmt=jpeg&wxfrom=5&wx_lazy=1&wx_co=1.jpgc8eeac0c315dba80e5d891bab52f6a88_640_wx_fmt=jpeg&wxfrom=5&wx_lazy=1&wx_co=1.jpg


一是,打造宜居住区;整个单元规划17宗住宅用地,其中,9宗用地容积率上限2.2,6宗住宅用地容积率上限2.5,仅2宗容积率为2.8,未来还有更多国央企,实力房企进驻。


二是,优化配套设施64地块在建1所九年一贯制学校(30班小学、24班初中)、111地块配置一所42班高中、106地块配置1所36班小学、67、89、93地块各配置一处15班幼儿园、116地块配置1处18班幼儿园、112地块配置1处9班幼儿园。


60地块配置1处文化活动中心;62地块配置1处全民健身中心;65、105地块各配置1处社区医院。


be160ef951d172df8eaae54aa7d8f934_640_wx_fmt=jpeg&wxfrom=5&wx_lazy=1&wx_co=1.jpg



秦汉新城塬北、渭北板块约
27667.2亩规划公示,将建设6所学校



11月4日,西咸新区官网发布关于XXQH-YB06、XXQH-WB07管理单元控规调整主要内容公示并征求意见的公告。


NO.1/XXQH-YB06管理单元控规调整


90bcda987dc68c6a328abfa5a4fa783e_640_wx_fmt=jpeg&wxfrom=5&wx_lazy=1&wx_co=1.jpg

单元位置示意丨截图自百度地图


该单元用地规模约518.98公顷,合计约7784.7亩。


8bfb2a2ffe69efc90b8a190fdbe73524_640_wx_fmt=png&wxfrom=5&wx_lazy=1&wx_co=1.png361718108c5760ad0620ec74620b1048_640_wx_fmt=png&wxfrom=5&wx_lazy=1&wx_co=1.png

修改前后控规对比


具体调整内容:

① 落实新区特殊教育学校及秦汉新城重点项目的用地需求,依托第四军医大学资源外溢效应,打造健康与医养产业组团。


将6.02公顷医疗卫生用地(A5)调整为2.67公顷特殊教育用地(A34) 和3.35公顷科研用地(A35);


将天汉大道以北、白庙街以南、汉惠大道以西、师家寨路以东2. 33公顷科研用地(A35)和4.34公顷一类工业用地(M1)调整为4.0公顷医疗卫生用地(A5)和2.67公顷商业用地(B1)。


将天汉大道以南、汉惠大道以西、师家寨路以东5.62公顷科研用地(A35)调整为商业用地(B1)。


依据《西咸新区科技研发项目建设品质标准(试行)》,将管理单元内科研用地容积率上限统一调整为2.3。


② 结合《秦咸阳城遗址保护总体规划(2020-2035)》要求,将天汉大道以南,汉惠大道以西,师家寨路以东,旅游路以北22.51公顷的科研用地(A35)调整为非建设用地(E2)。


值得关注的亮点:1宗中小学用地,2宗幼儿园用地。将建设一所小学,2所幼儿园。(箭头表示中小学用地、圆圈表示幼儿园用地)。


0c6b27f5930ef00664ecb6516b431d08_640_wx_fmt=png&wxfrom=5&wx_lazy=1&wx_co=1.png

教育用地示意图

e968b5748fb92032d5e7cb01c50e860f_640_wx_fmt=png&wxfrom=5&wx_lazy=1&wx_co=1.png

修改前后指标对比


该开发单元,已落户陕西省人民医院(西咸院区)。近日,空军军医大学新校区迎来新动作,预计明年5月正式动工,2025年9月整体竣工。届时,学校本部及986医院将整体搬迁至新校区。


NO.2/XXQH-WB07管理单元控规调整


437cff9b9494fb191f875f60cc96c107_640_wx_fmt=png&wxfrom=5&wx_lazy=1&wx_co=1.png

单元位置示意丨截图自百度地图


该单元用地规模约1325.5公顷,合计约19882.5亩。


具体调整内容:

① 为盘活闲置用地,考虑到周边功能,形成居住功能集聚效益,完善教育设施配套,将21.98公顷商业用地调整为19. 76公顷居住用地及2.22公顷中小学用地(24班小学),居住用地容积率上限为1.7,中小学用地容积率1.0。


② 优化道路交通系统。为解决片区道路通达性不足问题,在居住用地南侧增加一条东西向支路(20m)。修改后,城市道路用地较修改前增加1.55公顷;单元内新增0.08公顷建设用地,属于开发边界外新增建设用地指标,作为远期发展用地。


be669b17cfde5aac84bd3ec8cead800b_640_wx_fmt=png&wxfrom=5&wx_lazy=1&wx_co=1.png9baf0bad64c0bd0fc2932e2b9907df3b_640_wx_fmt=png&wxfrom=5&wx_lazy=1&wx_co=1.png

修改前后控规对比


值得关注的亮点:1宗中小学用地,2宗幼儿园用地。将建设一所24班小学,2所幼儿园。(箭头表示中小学用地、圆圈表示幼儿园用地)。


23616cfceba72b405871118dbd6e66d7_640_wx_fmt=png&wxfrom=5&wx_lazy=1&wx_co=1.png

教育用地示意图


353fe5e29fad4ad438bd4b4589cd2cbd_640_wx_fmt=png&wxfrom=5&wx_lazy=1&wx_co=1.png

修改前后指标对比



版权声明

本网原创,未经许可,不得转载。【注:凡注明“来源:XXX(非西安中考网 m.hytale-nav.com)”的作品,均转载自其它媒体,转载目的在于传递更多信息,并不代表本网赞同其观点和对其真实性负责;如因作品内容、版权和其它问题需要同本网联系的,请在30日内进行。邮箱:xazgknews@163.com】

标签
二维码

扫一扫 在手机阅读、分享本文

必看
必看
  • 西安市鄠邑区甘亭中心学校荣获西安市“红领巾法学院”示范学校称号
  • 西安市鄠邑区东关小学:规范课外读物 落实“五项管理
  • 周至县广济初中课后服务旗操
  • 标签
    热榜
    QQ

    微信扫一扫

    WeChat
    Top
    Baidu
    map